Aportando € 10
RECONOCIMIENTO
Mención en la página web www.ametsbide.eus agradeciendo la aportación realizada
> 05 Cofinanciadores
Goteo ha construido una historia única en el mundo del micromecenazgo. ¿Quieres seguir formando parte de ella?
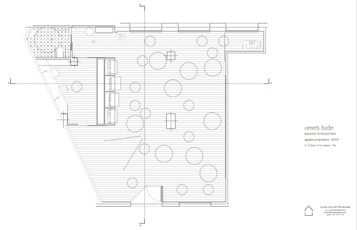
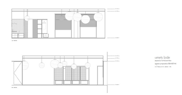
Amets Bide; lokal berria amestuz/ soñando nuevo local

Min.
Opt.
Mención en la página web www.ametsbide.eus agradeciendo la aportación realizada
Camiseta de Amets Bide
Curso de baile durante dos meses durante dos meses todos los sábados
Txapela o pañuelo (a elegir) + todo lo anterior. Disponemos de: 35 pañuelos y 15 txapelas
USB de 8 Gb con el logo de Amets Bide serigrafiado + todo lo anterior
Invitación para la fiesta de inauguración del local + todo lo anterior
Banner en la sección de colaboradores de la home page de www.ametsbide.eus (banner fijo de 300x300 px) + todo lo anterior.
Más allá del grupo de baile, soñamos con un espacio donde se puedan unir, la lengua vasca, la cultura y el tiempo libre.
Tarea
|
Mínimo | Óptimo |
|---|---|---|
|
ALBAÑILERIA
Derribo de tabiquería 27ml
Picar baldosa de baño 3m2
Retirar suelo de madera 63,6m2
Alicatar suelo de baño 3,5m2
|
€ 1.700 | |
|
ESCAYOLA
Igualar techo 21.5m2
Levantar tabique de pladur para armario 8ml
|
€ 1.050 | |
|
FONTANERIA
Desplazar el inodoro y el lavabo del sitio actual
|
€ 450 | |
|
ELECTRICIDAD
Mover cuadro eléctrico y toma de teléfono
Sacar nuevos puntos de luz 14uds
Instalar dos apliques de corriente directa 2uds
Instalar proyector 1ud
|
€ 2.500 | |
|
CARPINTERIA
Colocación de zócalo en todo el perímetro: 37,4ml
Colocación de suelo de madera: 85m2
Colocar puerta de 90cm 1ud
|
€ 1.820 | |
|
GASTOS DE LAS COMISIONES
Gastos bancarios + gastos de goteo
|
€ 480 | |
|
PINTURA
Pintar techos y paredes del local con pintura acrílica lavable. 179,5m2
Lacar puerta de baño 1ud
Lijar y lacar marco de ventanas 3uds
|
€ 1.450 | |
|
CARPINTERIA
Mesa empotrada a la pared en pino 3m
Baldas para armario
|
€ 1.050 | |
|
MATERIAL DE OFICINA
Ordenador, proyector, impresora...
|
€ 1.300 | |
| Total | € 8.000 | € 11.800 |
Este proyecto quiere buscar nuevas sinergias entre los diferentes agentes del pueblo y para ello quiere trabajar tres ámbitos: la lengua vasca, el tiempo libre y la cultura.
El objetivo final sería habilitar un espacio para los grupos socio-culturales del pueblo y a su vez, crear una referencia cultural en la plaza Domingo Unanue. Empezando de la Plaza y extendiendo a otras zonas de alrededor.
Entre otros, estos son los objetivos:
Además se impulsarán estos valores y actitudes:
El nuevo local será el centro para impulsar nuevas actividades en el pueblo y la coordinación de diferentes agentes será fundamental.
En esta nueva iniciativa las tres áreas anteriormente citadas (la lengua vasca, cultura y tiempo libre) tendrán responsables que trabajaran conjuntamente en un grupo de trabajo.
Este proyecto va dirigido a tod@s que puedan estar interesados en formar parte de esta nueva iniciativa para impulsar la cultura vasca en el pueblo.
Cada un@ puede aportar a su manera...En la organización de actividades, como voluntari@, difundiendo información....
El principal objetivo de la campaña es acondicionar el local y reunir gente para llevar a cabo este nuevo proyecto entre tod@s.
Amets Bide lleva más de 50 años como grupo de baile y este largo trayecto no ha sido nada fácil.
Nuestros recursos han sido más bien escasos y hemos conseguido salir adelante con mucho trabajo voluntario. En los últimos 5 años el grupo se está fortaleciendo y estamos consiguiendo nuestros objetivos.
Ahora trabajamos con otros agentes socio-culturales del pueblo impulsando la cultura vasca y hemos llevado a cabo diferentes proyectos, como:
2016: El zortziko de Ordizia (3:36 min): https://www.youtube.com/watch?v=zPeN5HPzEPQ
2015: Pasarela de trajes tradicionales (5:21 min) : https://www.youtube.com/watch?v=kqZ2Wov7jdA
2014: El 50. aniversario de Amets Bide (2:08 min): https://www.youtube.com/watch?v=Awoy71lidc0
2013: Dantza zati bat (6:45min) : https://www.youtube.com/watch?v=nSzmPyMZyik
RECONOCIMIENTO
Mención en la página web www.ametsbide.eus agradeciendo la aportación realizada
> 05 Cofinanciadores
CAMISETA + RECONOCIMIENTO
Camiseta de Amets Bide
> 69 Cofinanciadores
CURSO DE BAILE + RECONOCIMIENTO
Curso de baile durante dos meses durante dos meses todos los sábados
> 17 Cofinanciadores
TXAPELA o PAÑUELO + CURSO DE BAILE + CAMISETA + RECONOCIMIENTO
Txapela o pañuelo (a elegir) + todo lo anterior. Disponemos de: 35 pañuelos y 15 txapelas
> 03 Cofinanciadores
USB + TXAPELA O PAÑUELO + CURSO DE BAILE + CAMISETA + RECONOCIMIENTO
USB de 8 Gb con el logo de Amets Bide serigrafiado + todo lo anterior
> 03 Cofinanciadores
INVITACIÓN A LA INAUGURACIÓN DEL LOCAL+ USB + TXAPELA O PAÑUELO + CURSO DE BAILE + CAMISETA + RECONOCIMIENTO
Invitación para la fiesta de inauguración del local + todo lo anterior
> 00 Cofinanciadores
BANNER EL LA PÁGINA WEB + INVITACIÓN A LA INAUGURACIÓN DEL LOCAL+ USB + TXAPELA O PAÑUELO + CURSO DE BAILE + CAMISETA + RECONOCIMIENTO
Banner en la sección de colaboradores de la home page de www.ametsbide.eus (banner fijo de 300x300 px) + todo lo anterior.
> 00 Cofinanciadores
Ayuda en la difusión del proyecto mediante publireportajes, entrevitas etc. en diferentes medios (hitza, goierri telebista, noticias de gipuzkoa, dia